tiistai 2. toukokuuta 2017

Pohjakuvat

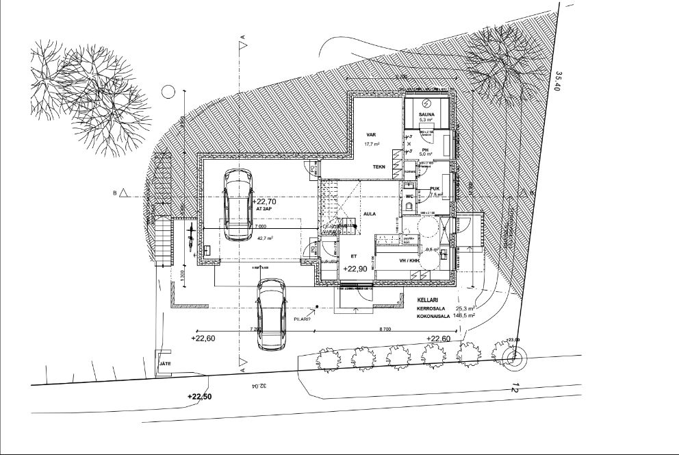
Tässä postauksessa tulee pohjakuvat, joilla lähdetään kilpailuttamaan talopakettitoimittajia. Tontti, tai lähinnä kuvissakin näkyvä plt-2-alueen raja, määräsi paljolti talon muodon. Lisäksi autotallin ovet haluttiin katon alle. Näin syntyi luontevasti terassi talon idän puoleiseen etuosaan.

Autotallista pääsee sisään määräysten vuoksi tehdyn sulkutilan läpi. Jotta sulkutila ei jäisi hukkatilaksi, ajattelimme tehdä sinne koko seinän korkuiset hyllyt kenkien säilytystä varten. Varsinaiseen eteiseen on tarkoitus laittaa jokin kevyt naulakko ja penkki. Pääosa ulkovaatteista säilytetään kuitenkin kodinhoitohuoneen kanssa samaa tilaa olevassa arkieteisessä. Toisen sisäänkäynnin yhteyteen tehdään jonkinlainen kurasyöppö. Lisää tiloista ja niiden suunnittelusta kerron jokaisesta tilasta erikseen tehdyissä postauksissa.


Yläkerrasta löytyy suurin osa varsinaisista asuintiloista. Lähtökohtana tilan suunnittelulle oli avokeittiö saarekkeella sekä sen takaa löytyvä ruokakomero. Makuuhuoneisiin käyntiä ei haluttu suoraan olohuoneesta.


Tärkeä osa pihaa on koko olohuoneen ympäri kiertävä terassi. Ilta-auringon puolella on vielä lasitettu terassi, johon kuljetaan suuren liukulasioven kautta. Saarekkeen yhteyteen tehtävän takan tuli näkyy myös terassille. Terassin viereen on tulossa myös paikka paljulle.

Ei kommentteja:

Lähetä kommentti